Main image
€750,000

Villa storica in vendita a Golasecca con parco sul fiume Ticino

Golasecca, Varese, Italy
Property Type - Villa
Bed 6
Bath 4
resize 550m²
resize 550m²
T974
Save
love
Share
upload
Property
Property
Property
Property
Property
Property
Property
Property
Property
Property
Property
Property
Property
Property
Property
Property
Property
Property
Property
Property
Property
Property
Property

Property Details

Historic villa for sale in Golasecca - On the banks of the Ticino river, in the municipality of Golasecca, a historic villa castle for sale built in 1890 by the architect Gagliardi.
The location is a few kilometers from Lake Maggiore and from Milan Malpensa International Airport.
The prestigious villa for sale represents an interesting example of bourgeois property of the late nineteenth century where elements of Art Nouveau style are combined with classic and late Romanesque reminiscences.
In addition to the main villa, the entrance courtyard leads to the two buildings elegantly joined by a semicircular ramp. The sobriety of the e

Property Details

Historic villa for sale in Golasecca - On the banks of the Ticino river, in the municipality of Golasecca, a historic villa castle for sale built in 1890 by the architect Gagliardi.
The location is a few kilometers from Lake Maggiore and from Milan Malpensa International Airport.
The prestigious villa for sale represents an interesting example of bourgeois property of the late nineteenth century where elements of Art Nouveau style are combined with classic and late Romanesque reminiscences.
In addition to the main villa, the entrance courtyard leads to the two buildings elegantly joined by a semicircular ramp. The sobriety of the exteriors is matched by an extreme richness of the interiors with coffered ceilings and neo-Renaissance fireplaces.
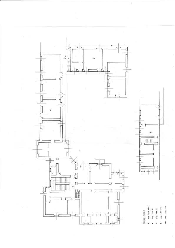
On the ground floor there is a double living room, a dining room, a billiard room, an eat-in kitchen, a study and a service bathroom.
The finishes of the time are particularly valuable.
In particular, the spectacular marble staircase, illuminated by windows of different shapes with "cathedral" windows.
From this you reach the first floor with the sleeping area with four double bedrooms with four en suite bathrooms and two single bedrooms.
On the mezzanine floor the laundry room, a bathroom.
On the second floor the open space attic.
From the top tower you can admire the view over the Lombard and Piedmontese plains up to Monte Rosa.
The property includes a garden of about 3,100 square meters with precious tree species such as ancient pines, local and Japanese magnolias, camellias, bamboos and azaleas of various kinds in addition to the 13,500 square meter forest.
The sloping forest overlooks the Ticino river.
The roofs of all the buildings were redone in 2010.
The villa is in better condition than the other two houses for sale. The required interventions are the systems, bathrooms, kitchen and windows. The other two properties are entirely to be restored.
This property is suitable for personal use, as a company headquarters, as a meeting center or as a B&B.
On each of the two houses for sale, it is possible to have a deduction on renovations of 50% up to the amount of € 96,000.00, thanks to the tax inventions activated by the Government.
Furthermore, the 110% super bonus can be used for energy efficiency interventions, installation of photovoltaic systems and columns for charging electric vehicles.

Enquire About This Property

Get in contact with us about this property today and one of our team will be in touch

Stresa Luxury Real Estate's photo

This property is marketed by

Stresa Luxury Real Estate

Similar Properties

Featured Properties